English
Español
Português
русский
Français
日本語
Deutsch
tiếng Việt
Italiano
Nederlands
ภาษาไทย
Polski
한국어
Svenska
magyar
Malay
বাংলা ভাষার
Dansk
Suomi
हिन्दी
Pilipino
Türkçe
Gaeilge
العربية
Indonesia
Norsk
تمل
český
ελληνικά
український
Javanese
فارسی
தமிழ்
తెలుగు
नेपाली
Burmese
български
ລາວ
Latine
Қазақша
Euskal
Azərbaycan
Slovenský jazyk
Македонски
Lietuvos
Eesti Keel
Română
Slovenski
मराठी
Srpski језик За всички заваръчни линии на 3 часа за заваряване на 1 час, които произвеждат ByJinfeng Weldcut, ще имат 12-месечна гаранция, които са най-високата машина за ефективност за увеличаване на производителността за крайните потребители от стоманена конструкция, мост, конструкция.
|
Модел |
Zhjj15 |
ZJ18 |
ZHJ20 |
|
T-Beam Webheight (H) |
200 ~ 1500 мм |
200-1800 |
200-2000mm |
|
Дебелина в мрежата (D) |
6 ~ 12 мм |
6 ~ 19 мм |
6 ~ 30 мм |
|
Фланец (б) |
200 ~ 800 мм |
200 ~ 1000 мм |
|
|
Flangethickness (T) |
6 ~ 25 мм |
6 ~ 40 мм |
|
|
Дължина на лъча (L) |
4000 ~ 15000 мм |
4000 ~ 15000 мм |
4000 ~ 15000 мм |
|
Материал за греда |
Q235 |
||
|
Тип заваряване |
Потопена дъга напречно заваряване на филе |
||
|
Заваръчен източник на енергия |
Единичен проводник или тип Twin тел |
Единичен тел |
Единичен тел |
|
Заваръчна скорост на изхода |
200 ~ 1000 mm/min |
||
|
Ъгъл на факла: |
45 ° Фина настройка |
||
|
Хидравлично налягане |
≤14 MPa |
||
|
Система за възстановяване на потока |
2sets |
||
|
Обем на флукс бункер |
2 × 50L |
||
|
Входния конвейер: |
12000 мм |
||
|
Изходни конвейерни валяк: |
12000 мм |
||
|
Основна мощност на машината |
18.0kw |
||
|
Хидравлична система: |
1set |
||
|
Единица за изправяне |
1 комплект, интегриран на машина |
||
|
Захранване: |
AC/380 V/50 Hz/3PH |
||
|
Възможност за изправяне |
6-40 мм |
||
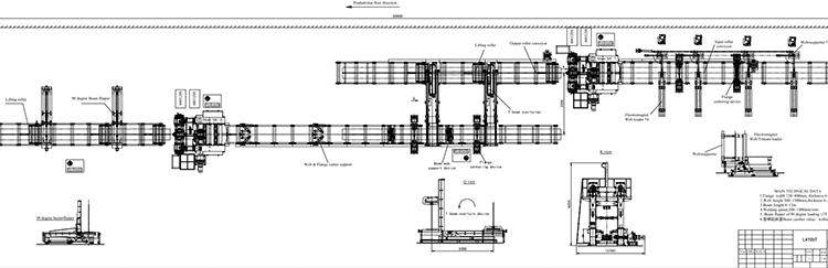
3-in 1 h заваръчни линии на лъча има комбинирана функция на H лъч, сглобяване на Т-лъч, заваряване и изправяне на деформация на фланец след заваряване. По този начин той може точно и бързо да реализира производството на H Beam и T Beam. Има следните предимства: проста работа, по -малко разходи за труд и малка площ на покритие.
Тази линия има два незадължителни процеса на заваряване, за да изберете според дебелината на структурната стоманена плоча, която ще бъде заварена:
Вариант А: Заваряване с единична дъгова тел заваряване, от което скоростта на отлагане е с 40% по -висока от общата единична дъгова единична тел за заваряване с дъга, SOT е особено подходяща за конструкцията дебелина на стоманата, от която дебелината е по -малка от 20 мм.
Вариант Б: Единична дъгова заварка. Той е подходящ за по -голям обхват на заваряването на дебелината на плочата.
Стандартните ZHJ3-in 1 h заваръчни линии за заваряване се състоят от една входна ролка, основна станция за заваряване и изправяне, таблица за изходна група. В основната заваръчна и изправена станция там инсталирани с модули за възстановяване на потока, заваряваща глава с факел и затягащи устройства за флайдж и уеб. Стандартната линия, включително и източниците на заснемане на източници на захранване.
1. StandardZHJ3-in 1 h заваръчни линии на лъча

2. Вариант 1:
Съгласно различни заявки от клиентите, ние също така предоставяме конфигурацията за заваръчни линии на THEZHJ3-in 1 H BEAM като следното:
Въз основа на стандартните заваръчни линии 3 в 1 Н, там добавят един набор от уеб зареждащи устройства, които са сътрудници от 4 бр.

3. Вариант 2:
Съгласно различни заявки от клиентите, ние също така предоставяме конфигурацията за заваръчни линии на THEZHJ3-in 1 H BEAM като следното:
Въз основа на стандартните заваръчни линии 3 в 1 Н, там добавят един набор от уеб зареждащи устройства, които са сътрудници от 4 бр.
Въз основа на по -горе, можем да добавим един комплект от 90 градуса лъч на лъча върху изходната ролка за преобръщане на заварения лъч в хоризонтално положение.

3. Вариант 3:
Някои клиенти може да се наложи да увеличат продукцията на производството, те се нуждаят от една заваръчна линия, за да се състои от 2 комплекта заваръчна станция. Първата заваръчна станция за заваряване на 1-ви фланец и мрежа за образуване на Т лъч, 2-рият за заваряване на заварения Т-лъч и 2-ри флайрец, за да образува Н греда.
3.1 Така въз основа на стандартните заваръчни линии 3 в 1 Н, там добавете един набор от уеб зареждащи устройства, които са сътрудници от 4 бр.
3.2 За да добавите 1 набор от претоварване на Т-лъча за завъртане на Т-лъча на 180 градуса и поставяне на Т-лъча на 2-ри фланец върху входната ролка на 2-ра заваръчна станция.
3.3 За да добавите един комплект от 90 градуса лъч на лъча върху изходната ролка на масата на 2 -ра заваръчна станция за преобръщане на заварения лъч в хоризонтално положение.
T Производствен поток на лъча и Н-лъч
3 в 1 интегрирани заваръчни линии за заваряване на H-лъч, инсталирани във фабриката на потребителите